Facilitez-vous la compréhension des plans mécaniques grâce à des méthodes simples.
ETUDE DE PLANS COMPLEXES
Le diagnostic est souvent réalisé en premier lieu à partir des faits constatés sur l’équipement. Mais si la cause n’est pas trouvée, il faut exécuter le diagnostic en se servant des plans d’ensemble qui peuvent être complexes.
Pour réaliser à bien cette étude, LEOTECH formation a mis en place un stage réunissant toutes les méthodes pour comprendre le fonctionnement, ou respecter une chronologie de démontage de ces sous-ensembles :
- Recherche des guidages et des transmissions
- Lecture des hachures
- Regroupement des pièces en mouvement
- Séparation des pièces une à une
- Recherche des pièces d’usure
- Etudes des jeux internes
Durée
3 jours (21h)
Dates de formation
Voir planning des formations
Public concerné
Techniciens de maintenance, Préparateurs, Techniciens des méthodes, Responsables maintenance
TARIF 2026
1100 € HT stage INTER (pauses et déjeuners compris)
Pour les formations INTRA, nous consulter
Prérequis
Détenir des connaissances sur les équipements industriels possédant des sous-ensembles mécaniques.
Objectif pédagogique
Etudier les plans mécaniques afin de préparer une gamme d’intervention ou d’effectuer un diagnostic sur plan.
Les + de ce stage
-
Des supports de cours simples et utilisables au quotidien.
- 70% d’exercices pratiques
- Possibilité de formation en INTRA (avec envoi préalable des plans d’ensemble)
Objectifs opérationnels
-
Identifier sur un plan d’ensemble les principaux composants mécaniques de guidage et de transmission.
- Réaliser un diagnostic à partir d’un plan d’ensemble suivant les effets constatés.
- Rédiger une gamme d’intervention mécanique à partir d’un dessin d’ensemble complexe.
- Respecter un jeu par rapport à une conformité fonctionnelle.
- Intégrer les dilatations thermiques dans les réglages.
Moyens
Support :
- Plans d’ensemble en A0
- Réducteur en coupe
- Plans en A2 distribués
Outillages spécifiques :
- Crayons de couleur
- Loupes
- Règle
Nombre de participants
Groupe de 6 participants au maximum favorisant un suivi personnalisé.
ÉVALUATION DES ACQUIS
Contrôle continu des acquis ou Q.C.M.
SANCTIONS DE FIN DE STAGE
Attestation de formation
Après le stage...
MDR 33 : Maintenance des réducteurs
MRS 42 : Montage des roulements spéciaux
ASM 41 : Amélioration des systèmes mécanique
Programme de formation
Les différents thèmes étudiés ci-dessous seront réalisés à partir de plans en A0, réduit en A2 pour les stagiaires.
Méthode de lecture globale (0,5 jour)
Représentation des guidages :
- Roulements selon le type (en coupe ou simplifié)
- Glissière
Représentation des transmissions :
- Chaîne
- Courroie
- Engrenages
Représentation des pièces pleines:
- Arbre, vis
Règles de dessin industriel
- Nombre de vues
- Trait
- Coupe
Méthode de lecture pour réaliser un diagnostic (1 Jour)
Réalisation d’un schéma cinématique:
- Regroupement des pièces en mouvement (coloriage)
- Identification des liaisons mécaniques
- Création du schéma cinématique
Etude de chaine cinématique
- Rapport
- Vitesse
- Couple, etc...
Fonctions des pièces:
- Pièces de réglages
- Pièces d’usure
- Pièces de fonctionnement
Diagnostic selon les effets constatés à partir des différents plans étudiés:
- Etudes de cas (jeu, blocage, fuite, échauffement)
Méthode de lecture pour réaliser le démontage (0.5 Jour)
Préparation du plan :
- Séparation des pièces individuellement (coloriage)
- Etude des pièces séparables
Rédaction de la gamme de démontage sur plan :
- Sécurité en intervention
- Chronologie de démontage.
- Outillage spécifique nécessaire à l’intervention
- Durée estimée
Méthode de lecture pour réaliser le remontage (1 Jour)
Rédaction de la gamme de remontage sur plan
- Chronologie de montage.
- Outillage spécifique nécessaire à l’intervention
- Réglage du jeu fonctionnel des roulements à billes à contact oblique.
- Réglage du jeu fonctionnel des roulements à rouleaux coniques (montage en « X » et en « O »)
- Réglage du jeu de denture des engrenages
- Durée estimée pour le remontage
Activités pratiques en atelier

Etude de plan de réducteur

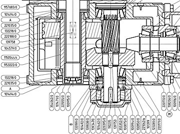
Exemple de plan en coupe

Etude de plan en A0

Exemple de vue éclatée













